札幌エリアの新築・建売住宅、
一軒家をお探しなら
さっぽろ新築.com

販売中の札幌建売住宅

【スマート・ワンシティー札幌市豊平区福住2条9丁目2号棟】桧家新築戸建(3LDK)4,380万円!

建物・土地:販売価格
4,380
(税込)
万円
月々の支払い
107,265
(税込)
万円

頭金0円/ボーナス払い0円

※金利0.83%、借入期間40年

※支払い額、金利は参考です 建物の仕様によって変わる場合があります

担当者のおすすめポイント!
教育施設・買物施設の充実した住環境! 広々とした敷地面積43坪以上!吹抜のある明るいリビング! □当社建物について□ ◆一年中、家の温度を快適に保つ全館空調「Z空調」の魅力◆ ・玄関から屋根裏まで家中くまなく快適な温度 ・寒い冬でも温度差がないため、ヒートショックのリスクを軽減! ・24時間つけていても、電気代は驚きの低コスト!

交通・地図

所在地
北海道札幌市豊平区福住2条9丁目15-11
最寄駅
地下鉄東豊線「福住」駅徒歩27分 地下鉄南北線「澄川」駅徒歩30分
学校区
札幌市立西岡小学校 約650m徒歩9分 札幌市立西岡北中学校 約750m徒歩10分
お電話でのお問い合わせ
お電話でのお問い合わせ(受付時間 10:00〜18:00)
011-596-0244

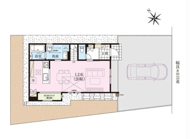
物件間取り図

間取り図
間取り図

物件の特徴

物件設備

ウォークインクローゼット

ウォークインクローゼット

整理された収納でいつもきれいな部屋

リビング吹き抜け

リビング吹き抜け

明るいリビングと圧倒的に高い天井を実現

充実機能満載の食器棚

充実機能満載の食器棚

お手入れしやすく衛生的 コの字型家電収納付・二の字型家電収納付

ぬくぬくヌック

ぬくぬくヌック

小じんまりとした居心地のいい空間

物件概要

間取り
3LDK
土地面積
102.69㎡
築年月(竣工月)
2025年11月(完成)
建ぺい率/容積率
建ぺい率60%、容積率200%
接道状況
南東側8.0m公道
用途地域
第二種中高層住居専用地域
設備
北海道電力・公営水道・公共下水
建物面積
161.42㎡
駐車場
2台
都市計画
市街化区域
地目
宅地
地勢
取引態様
建築確認番号
第SKK20250870号他
引渡し予定月
第SKK20250870号他
その他制限事項
無し
取引有効期限
2026年12月

周辺環境

西岡小学校 約650m徒歩9分

西岡小学校 約650m徒歩9分

西岡北小学校 約750m徒歩10分

西岡北小学校 約750m徒歩10分

福住保育園 約350m徒歩5分

福住保育園 約350m徒歩5分

ツルハドラッグ 約550m徒歩7分

ツルハドラッグ 約550m徒歩7分

この物件でお問い合わせをする

物件情報 必須
お問い合わせ内容 必須 ※複数回答可
ご予約希望日必須
第一希望日
希望時間
第二希望日
希望時間
第三希望日
希望時間
お名前 必須
メールアドレス 必須
電話番号 必須
郵便番号 必須
都道府県 必須
市区町村 必須
住所 必須
ご質問などがあれば入力ください



取り扱い会社:株式会社 S plus home