札幌エリアの新築・建売住宅、
一軒家をお探しなら
さっぽろ新築.com

販売中の札幌建売住宅

【前田4条6丁目
JR函館本線「稲積公園」駅徒歩12分】3LDK 土地価格:2100万円 参考プラン:2150万円【JUSTPRICE】

建物価格
2,150
(税込)
万円
土地価格
2,100
(税込)
万円
月々の支払い
104,081
(税込)
万円

頭金0円/ボーナス払い0円

※金利0.83%、借入期間40年

※支払い額、金利は参考です 建物の仕様によって変わる場合があります

担当者のおすすめポイント!
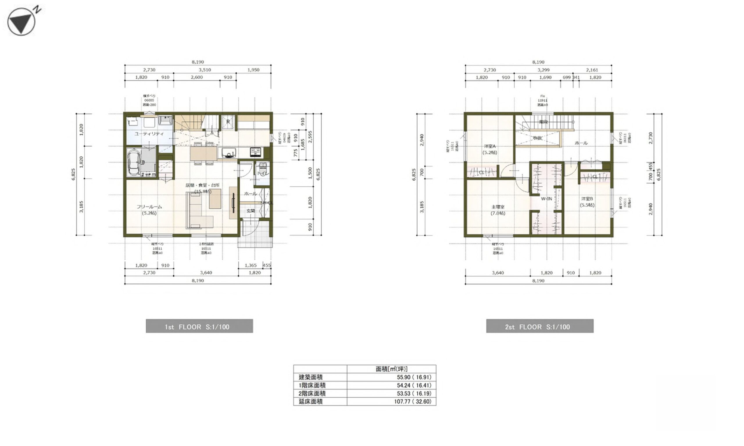
ジョンソンホームズ施工の新築 ◆建築条件付き売地ではありません ◆小中学校、稲積公園、複数の商業施設、病院が徒歩10分圏内に揃っています。 ◆南東向きで日当たりが良く、建築プランの立てやすい成形地! ◆注文住宅を4000棟以上手がけた「ジョンソンホームズ」の新築戸建プラン JUST PRICE ◆注文住宅を手掛けてきたコーディネーターがインテリアを監修 ◆設計・施工・販売・アフターまで自社一貫体制、 住んでからのアフターフォローも充実! ■物件概要 ・ 3LDK 延べ床面積107.77㎡ ・ 敷地面積216.0㎡ ・ 幅員:南東約12.0m公道 ・ 高断熱のトリプルサッシ ・ カーテン&照明付 ・ 主寝室にはウォークインクローク ・ 各居室にも収納あり

交通・地図

所在地
北海道札幌市手稲区前田4条6丁目
最寄駅
JR函館本線「稲積公園」駅徒歩12分
学校区
稲積小学校・稲積中学校
お電話でのお問い合わせ
お電話でのお問い合わせ(受付時間 10:00〜18:00)
011-596-0244

物件間取り図

間取り図
間取り図
間取り図

物件設備

物件概要

間取り
3LDK
土地面積
216.0㎡
築年月(竣工月)
ご契約から6か月
建ぺい率/容積率
建蔽率60% 容積率200%
接道状況
南東側約12.0m接道
用途地域
第二種中高層住居専用
設備
都市ガス・公営水道・公共下水
建物面積
55.9㎡
駐車場
3台駐車可
都市計画
市街化区域
地目
宅地
地勢
平坦地
取引態様
一般媒介
建築確認番号
引渡し予定月
その他制限事項
取引有効期限
2026年12月

周辺環境

札幌市立稲積小学校

札幌市立稲積小学校

札幌市立稲積中学校

札幌市立稲積中学校

この物件でお問い合わせをする

物件情報 必須
お問い合わせ内容 必須 ※複数回答可
ご予約希望日必須
第一希望日
希望時間
第二希望日
希望時間
第三希望日
希望時間
お名前 必須
メールアドレス 必須
電話番号 必須
郵便番号 必須
都道府県 必須
市区町村 必須
住所 必須
ご質問などがあれば入力ください



取り扱い会社:株式会社 S plus home